Featured Image
CozyCube CozyCube CozyCube
  • Home
  • Gallery
  • About
  • Blogs
  • Frequently Asked Questions
  • Initial Pricing
  • Build Your Home
  • Contact Us
  • CozyCube

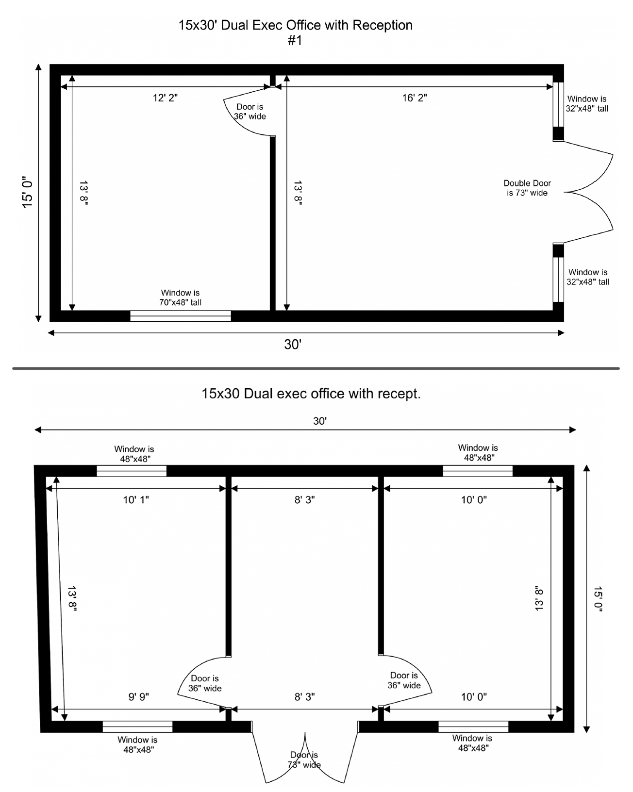
Large Private Office with Office Sharing Reception

Featured Image
CozyCube
  • Home
  • Gallery
  • About
  • Blogs
  • Frequently Asked Questions
  • Initial Pricing
  • Build Your Home
  • Contact Us
  • CozyCube

Large Private Office with Office Sharing Reception

Solution

Permanent Solution

Size

450 sqft

15 x 30

Description

15ft x 12ft Executive office
15ft x 17ft6 Reception area with reception desk

Download floor plan
Build your own

Other projects

Collaborative Open Concept

One Bedroom Suite

Dual Office with Reception Area

CozyCube
CozyCube

GET IN TOUCH

    CozyCube

    CONTACT

    (801) 413-3371 BuildTiny@cozycubes.net

    OFFICE

    Salt Lake City, UT

    modal image